- Početna
Ministarstvo javnih radova Tehnička dokumentacija - prilagođavanje objekta dr...
Pažnja: Sadržaj ove stranice je dio arhivskog sadržaja i odnosi se na prethodne sazive Vlade Crne Gore. Moguće je da su informacije zastarjele ili nerelevantne.
Arhiva
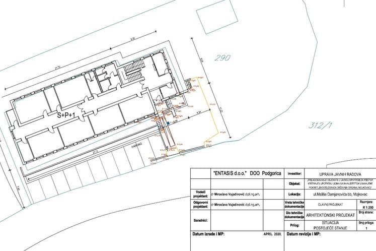
Tehnička dokumentacija - prilagođavanje objekta državnih organa u Mojkovcu za pristup, kretanje i upotrebu licima sa invaliditetom i smanjene pokretljivosti

Objavljeno: 04.11.2021. • 16:24 Autor: Uprava javnih radova
Uprava javnih radova objavljuje tehničku dokumentacije za projekat prilagođavanja objekta državnih organa u Mojkovcu za pristup, kretanje i upotrebu licima sa invaliditetom i smanjene pokretljivosti:
Postupak javne nabavke za projekat prilagođavanja objekta državnih organa u Mojkovcu za pristup, kretanje i upotrebu licima sa invaliditetom i smanjene pokretljivosti možete pratiti OVDJE.
UPRAVA JAVNIH RADOVA
Vezani članci:
Tehnička dokumentacija - Izvođenje radova na zatvaranju i rekultivaciji privremenog skladi
19.05.2026.Najava tendera za projekat “Tehnička pomoć za pripremu projekta za životnu sredinu i klima
19.05.2026. Da li vam je sadržaj ove stranice bio od koristi?

