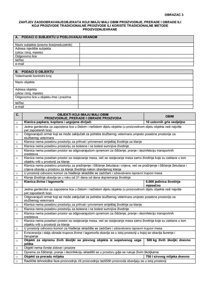
Zahtjev za odobravanje objekata koji imaju mali obim proizvodnje, prerade i obrade ili koji proizvode tradicionalneproizvode ili koriste tradicionalne metode proizvodnje hrane OBRAZAC 3
Objavljeno: 30.07.2024. • 09:42
Autor:
Uprava za bezbjednost hrane, veterinu i fitosanitarne poslove
pdf•292 KB


